
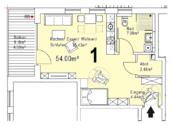
1 Zimmer – Wohnfläche ca. 54 m² – verfügbar im Hochparterre (W1), 1. Obergeschoss (W9) und 2. Obergeschoss (W17)

2 Zimmer – Wohnfläche ca. 67 m² – verfügbar im Hochparterre (W2), 1. Obergeschoss (W10) und 2. Obergeschoss (W18)

3 Zimmer – Wohnfläche ca. 77 m² – verfügbar im Hochparterre (W3), 1. Obergeschoss (W11) und 2. Obergeschoss (W19)

2 Zimmer – Wohnfläche ca. 66 m² – verfügbar im Hochparterre (W4), 1. Obergeschoss (W12), 2. Obergeschoss (W20)

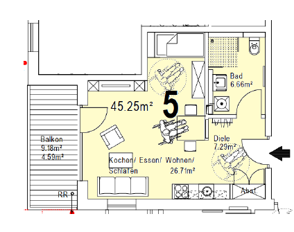
1 Zimmer – Wohnfläche ca. 45 m² – verfügbar im Hochparterre (W5), 1. Obergeschoss (W13) und 2. Obergeschoss (W21)

3 Zimmer – Wohnfläche ca. 76 m² – verfügbar im Hochparterre (W6), 1. Obergeschoss (W14) und 2. Obergeschoss (W22)

2 Zimmer – Wohnfläche ca. 64 m² – verfügbar im Hochparterre (W7+8), 1. Obergeschoss (W15+16) und 2. Obergeschoss (W23+24)

2 Zimmer – Wohnfläche ca. 68 m² – verfügbar im Penthouse (W25+26)

2 Zimmer – Wohnfläche ca. 69 m² – verfügbar im Penthouse (W27+28)
